CARBINS 01 愛知県 尾張旭市 桜ヶ丘町西413番地 ガレージハウス7戸
ガレージハウス ジオネラ
交通アクセス抜群の稲沢市物件!!JR東海道本線清洲駅徒歩15分☆彡
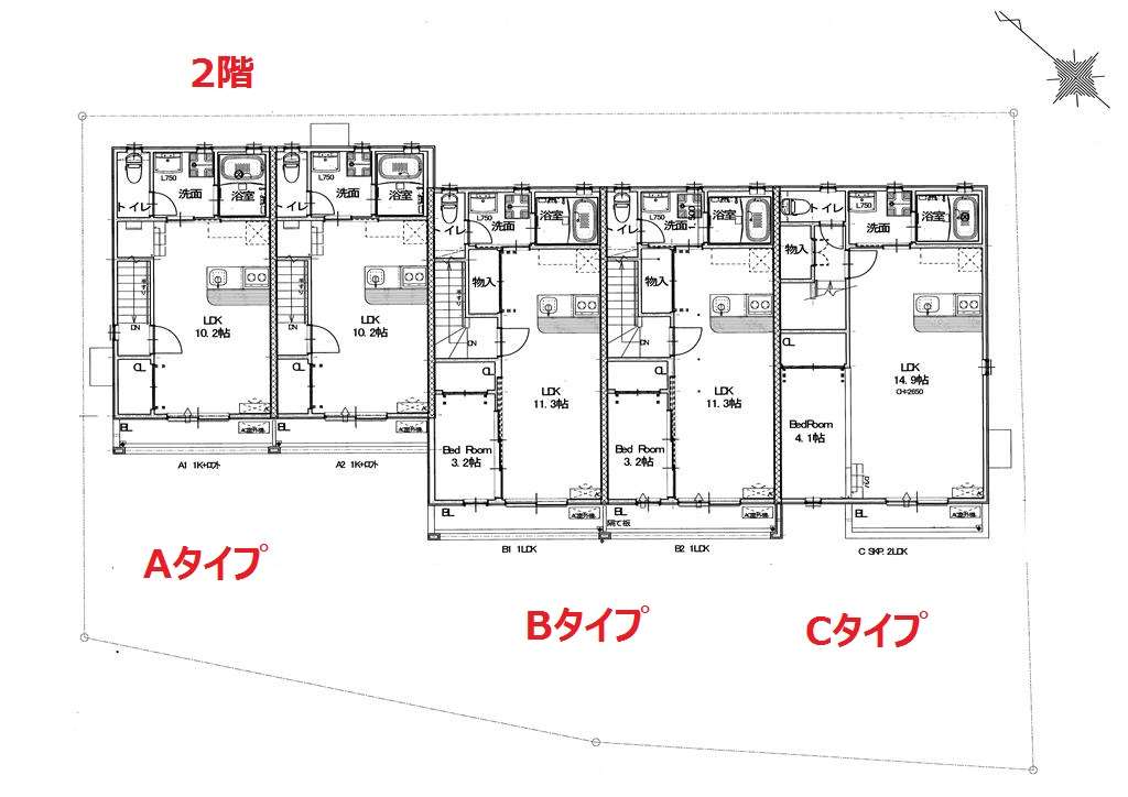
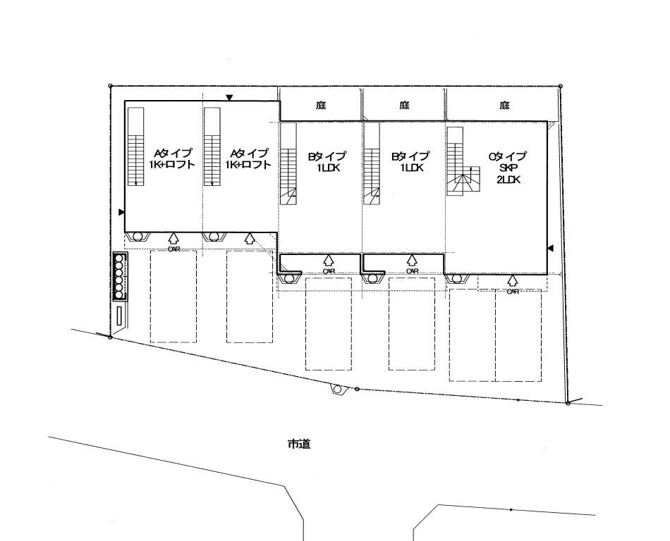
PLAN
見取り図
※画像をクリックすると拡大してご覧いただけます
SPEC
スペック
- 物件概要
-
■愛知県稲沢市北市場本町2丁目7-4
■ロフト付1K 2戸/1LDK 2戸/2LDKスキップフロア 1戸
■2020年9月末完成
・稲沢市に初登場の2LDKスキップフロア&1LDKタイプ。しかも専用庭付き。
・全室 屋外駐車場付き。
・清須市への通勤に便利な立地。 - 竣工日
- 2020年9月
- 交 通
・JR東海道本線清洲駅 自転車約5分
・国道22号 車で約3分
・名ニ環・名古屋高速6号清洲線 清洲インター 車で約5分
・名神自動車道 一宮インター 車で約10分- 設 備
-
☆ガレージ内設備☆
リモコン式電動シャッター
給湯設備
レール式スポットライト
センサー付き換気扇
収納棚取り付け可能
エアコン設置可
電気自動車対応
宅配ボックスあり - 賃貸条件
- ※満室のため非表示
- その他
- ペット不可
MAP
地 図
ROOM
部屋一覧
入居予約をご希望の方は左の予約ボタンを押してください。専用のフォームへ移動します。
- ●:キャンセル待ちなし
- まだご予約が入っていないお部屋です。
- ▲:キャンセル待ちあり
- すでにご予約が入っているお部屋です (やむを得ない事情で入居辞退される方も一定数おられますので、ご入居できる可能性は十分にあります。)
| 入居予約 | No. | 間取り | 広さ | 駐車場 | 賃料 | その他 | 空き状況 | 入居可能日 |
|---|---|---|---|---|---|---|---|---|
| A | ロフト付1K | LDK10.2帖+ロフト4.7帖 | ガレージ幅4.0m×奥行6.9m(最大部分) | ー | シャッター幅2.6m×高さ2.2m | 入居中 | ||
| B | ロフト付1K | LDK10.2帖+ロフト4.7帖 | ガレージ幅4.0m×奥行6.9m(最大部分) | ー | シャッター幅2.6m×高さ2.2m | 入居中 | ||
| C | 1LDK | LDK11.3帖+洋室3.2帖 | ガレージ幅4.4m×奥行7.0m(最大部分) | ー | シャッター幅3.0m×高さ2.2m | 入居中 | ||
| D | 1LDK | LDK11.3帖+洋室3.2帖 | ガレージ幅4.4m×奥行7.0m(最大部分) | ー | シャッター幅3.0m×高さ2.2m | 入居中 | ||
| E | 2LDKスキップフロア | LDK14.9帖+中2階5.1帖+Bedroom4.1帖 | ガレージ幅5.3m×奥行8.0m(最大部分) | ー | シャッター幅3.0m×高さ2.2m | 入居中 |
| No. | A |
|---|---|
| 間取り | ロフト付1K |
| 広さ | LDK10.2帖+ロフト4.7帖 |
| 駐車場 | ガレージ幅4.0m×奥行6.9m(最大部分) |
| 賃料 | ー |
| その他 | シャッター幅2.6m×高さ2.2m |
| 空き状況 | 入居中 |
| 入居可能日 | |
| 入居予約 | |
| No. | B |
| 間取り | ロフト付1K |
| 広さ | LDK10.2帖+ロフト4.7帖 |
| 駐車場 | ガレージ幅4.0m×奥行6.9m(最大部分) |
| 賃料 | ー |
| その他 | シャッター幅2.6m×高さ2.2m |
| 空き状況 | 入居中 |
| 入居可能日 | |
| 入居予約 | |
| No. | C |
| 間取り | 1LDK |
| 広さ | LDK11.3帖+洋室3.2帖 |
| 駐車場 | ガレージ幅4.4m×奥行7.0m(最大部分) |
| 賃料 | ー |
| その他 | シャッター幅3.0m×高さ2.2m |
| 空き状況 | 入居中 |
| 入居可能日 | |
| 入居予約 | |
| No. | D |
| 間取り | 1LDK |
| 広さ | LDK11.3帖+洋室3.2帖 |
| 駐車場 | ガレージ幅4.4m×奥行7.0m(最大部分) |
| 賃料 | ー |
| その他 | シャッター幅3.0m×高さ2.2m |
| 空き状況 | 入居中 |
| 入居可能日 | |
| 入居予約 | |
| No. | E |
| 間取り | 2LDKスキップフロア |
| 広さ | LDK14.9帖+中2階5.1帖+Bedroom4.1帖 |
| 駐車場 | ガレージ幅5.3m×奥行8.0m(最大部分) |
| 賃料 | ー |
| その他 | シャッター幅3.0m×高さ2.2m |
| 空き状況 | 入居中 |
| 入居可能日 | |
| 入居予約 |
RECOMMEND
おすすめ物件
