CARBINS 01 愛知県 尾張旭市 桜ヶ丘町西413番地 ガレージハウス7戸
GAREX UEJI
岡崎市南部の人気物件!人気の音スタイルも有り☆彡
PLAN
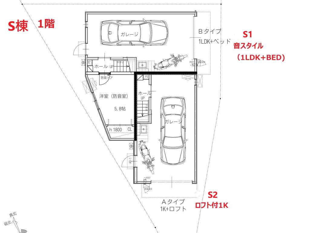
見取り図
※画像をクリックすると拡大してご覧いただけます
SPEC
スペック
- 物件概要
-
■愛知県岡崎市上地1丁目43番11、他
■2棟5戸(1Kロフト2戸/1LDK2戸/1LDKロフトベッド付き(防音室)1戸
■2021年4月完成
岡崎市南部 上地に初お目見え!
全4タイプ、人気の音スタイル登場!
幸田町相見へのアクセスも良し! - 竣工日
- 2021年4月
- 交 通
- ・JR岡崎駅 車で約3分
・248号線 車で約2分
・東名岡崎IC 車で約10分 - 設 備
-
☆ガレージ内設備☆
リモコン式電動シャッター
給湯設備
レール式スポットライト+ダウンライト
センサー付き換気扇
収納棚取り付け可能
エアコン設置可
電気自動車対応
TV用ジャックあり
宅配ボックス付 - 賃貸条件
- ※満室のため非表示
- その他
-
ペット不可
参考間取り。現況優先。
MAP
地 図
ROOM
部屋一覧
入居予約をご希望の方は左の予約ボタンを押してください。専用のフォームへ移動します。
- ●:キャンセル待ちなし
- まだご予約が入っていないお部屋です。
- ▲:キャンセル待ちあり
- すでにご予約が入っているお部屋です (やむを得ない事情で入居辞退される方も一定数おられますので、ご入居できる可能性は十分にあります。)
| 入居予約 | No. | 間取り | 広さ | 駐車場 | 賃料 | その他 | 空き状況 | 入居可能日 |
|---|---|---|---|---|---|---|---|---|
| N1 | 1Kロフト | LDK10.0帖+ロフト4.5帖 | ガレージ幅3.9m×奥行6.1m(最大部分) | ー | シャッター幅2.7m×高さ2.3m | 入居中 | ||
| N2 | 1LDK | LDK11.3帖+洋室2.9帖 | ガレージ幅4.3m×奥行7.0m(最大部分) | ー | シャッター幅3.2m×高さ2.3m | 入居中 | ||
| N3 | 1LDK | LDK11.3帖+洋室2.9帖 | ガレージ幅4.3m×奥行7.0m(最大部分) | ー | シャッター幅3.2m×高さ2.3m | 入居中 | ||
| S1 | 1LDKロフトベッド(防音室付き) | LDK10.0帖+防音室5.8帖 | ガレージ幅3.9m×奥行7.1m(最大部分) | ー | シャッター幅2.8m×高さ2.2m | 入居中 | ||
| S2 | 1Kロフト | LDK10.3帖+ロフト4.6帖 | ガレージ幅3.9m×奥行7.1m(最大部分) | ー | シャッター幅2.7m×高さ2.2m | 入居中 |
| No. | N1 |
|---|---|
| 間取り | 1Kロフト |
| 広さ | LDK10.0帖+ロフト4.5帖 |
| 駐車場 | ガレージ幅3.9m×奥行6.1m(最大部分) |
| 賃料 | ー |
| その他 | シャッター幅2.7m×高さ2.3m |
| 空き状況 | 入居中 |
| 入居可能日 | |
| 入居予約 | |
| No. | N2 |
| 間取り | 1LDK |
| 広さ | LDK11.3帖+洋室2.9帖 |
| 駐車場 | ガレージ幅4.3m×奥行7.0m(最大部分) |
| 賃料 | ー |
| その他 | シャッター幅3.2m×高さ2.3m |
| 空き状況 | 入居中 |
| 入居可能日 | |
| 入居予約 | |
| No. | N3 |
| 間取り | 1LDK |
| 広さ | LDK11.3帖+洋室2.9帖 |
| 駐車場 | ガレージ幅4.3m×奥行7.0m(最大部分) |
| 賃料 | ー |
| その他 | シャッター幅3.2m×高さ2.3m |
| 空き状況 | 入居中 |
| 入居可能日 | |
| 入居予約 | |
| No. | S1 |
| 間取り | 1LDKロフトベッド(防音室付き) |
| 広さ | LDK10.0帖+防音室5.8帖 |
| 駐車場 | ガレージ幅3.9m×奥行7.1m(最大部分) |
| 賃料 | ー |
| その他 | シャッター幅2.8m×高さ2.2m |
| 空き状況 | 入居中 |
| 入居可能日 | |
| 入居予約 | |
| No. | S2 |
| 間取り | 1Kロフト |
| 広さ | LDK10.3帖+ロフト4.6帖 |
| 駐車場 | ガレージ幅3.9m×奥行7.1m(最大部分) |
| 賃料 | ー |
| その他 | シャッター幅2.7m×高さ2.2m |
| 空き状況 | 入居中 |
| 入居可能日 | |
| 入居予約 |
RECOMMEND
おすすめ物件
